Park Terrace, Pitlochry
Property Summary
Property Features
- 3 spacious bedrooms
- Close to local amenities
- Near public transport links
- Ideal for families
- Viewing highly recommended
- Charming Pitlochry location
- Located in the town centre
- Fantastic sized garden
Full Details
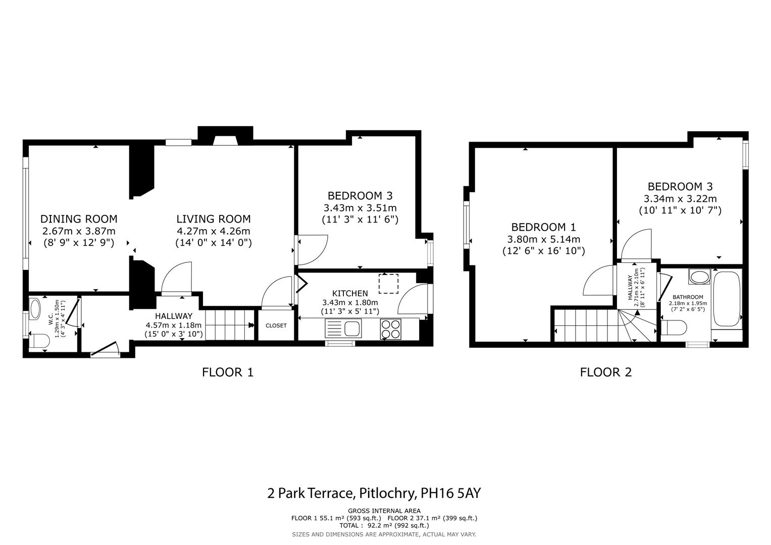
The accommodation is arranged over two levels. Upon entering, you are welcomed by a bright and inviting entrance hall that sets the tone for the rest of the property. The spacious living room enjoys ample natural light and provides an ideal space for both relaxation and entertaining. Adjacent to this is the formal dining room, perfect for family meals or hosting guests. The kitchen offers a good range of fitted units and worktop space. Completing the ground floor is the third bedroom, which could also serve as a home office, study, or snug, along with a convenient W.C.
On the upper level, you will find two further well-sized bedrooms, both offering pleasant views and excellent storage potential. The accommodation is rounded off by a family bathroom fitted with a three-piece suite.
Externally, the property sits on an impressive and sizeable plot. The generous garden grounds are mainly laid to lawn, providing ample space for outdoor activities, gardening enthusiasts, or future landscaping projects.
Located in the heart of Pitlochry, the property is within easy reach of local amenities, scenic walks, transport links, and the town’s vibrant community offerings. This delightful home presents a fantastic opportunity to acquire a property in one of Highland Perthshire’s most sought-after locations.
Virtual Tours
If you would like to arrange a viewing of this property, please click the button below and complete the pop up form. A member of our team will be in touch with you shortly thereafter.






















