To Let

Graham Court, Bankfoot, Perth

Property Summary

Bright and spacious 4 bed detached house located in the popular village of Bankfoot. The charming village of Bankfoot lies approximately 8 miles north of Perth. Within the village there are several amenities including a local supermarket, village inn/restaurant, nursery, primary school and regular bus service. Road links give easy access to Perth and the A9 dual-carriageway.
4 Bedrooms
2 Bathrooms
1 Receptions
£1,400 pcm
Dalriada Graham Court, Bankfoot, PH1 4DS
£1,400 pcm
4 Bedrooms
2 Bathrooms
1 Receptions

Full Details

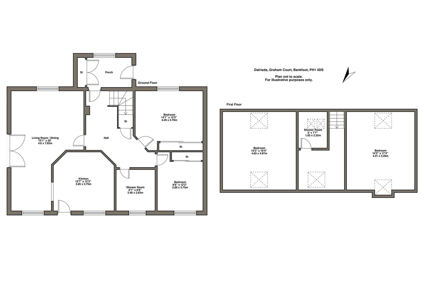
Accommodation compromises ; GROUND FLOOR: entrance vestibule, hallway, open plan living room/dining room, kitchen, bathroom and two bedrooms. FIRST FLOOR – landing, 2 double bedrooms and shower room.

This property offers the ideal family home benefitting from oil central heating and double glazing throughout.

Externally, there are garden grounds to the front, side and rear with timber decking for outdoor entertaining in the summer months. Off street parking is available to the front of the property.

EPC: D
Council Tax Band: F
Landlord Registration Number: 1055108/340/10061
LARN1907010

Available end of November 2025

Virtual Tours

Floorplans

EPCs

If you would like to arrange a viewing of this property, please click the button below and complete the pop up form. A member of our team will be in touch with you shortly thereafter.